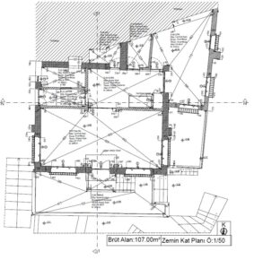
YASEMİN HANIM KONAĞI
- Proje Yeri / Locationİzmit / Kocaeli
- Proje Ekibi / Team Elif Çelik Arısal, Dr. Arsal Arısal, Roza Çakmak
- İşveren / ClientONETS MAKİNE MOTOR VE YEDEK PARÇA ALIM SATIM İTHALAT İHRACAT LİMİTED ŞTİ
- Proje Türü / TypologyRestorasyon Projesi
- Tarih / Date2021






















